ID di proprietà:
DESCRIZIONE DELL'IMMOBILE
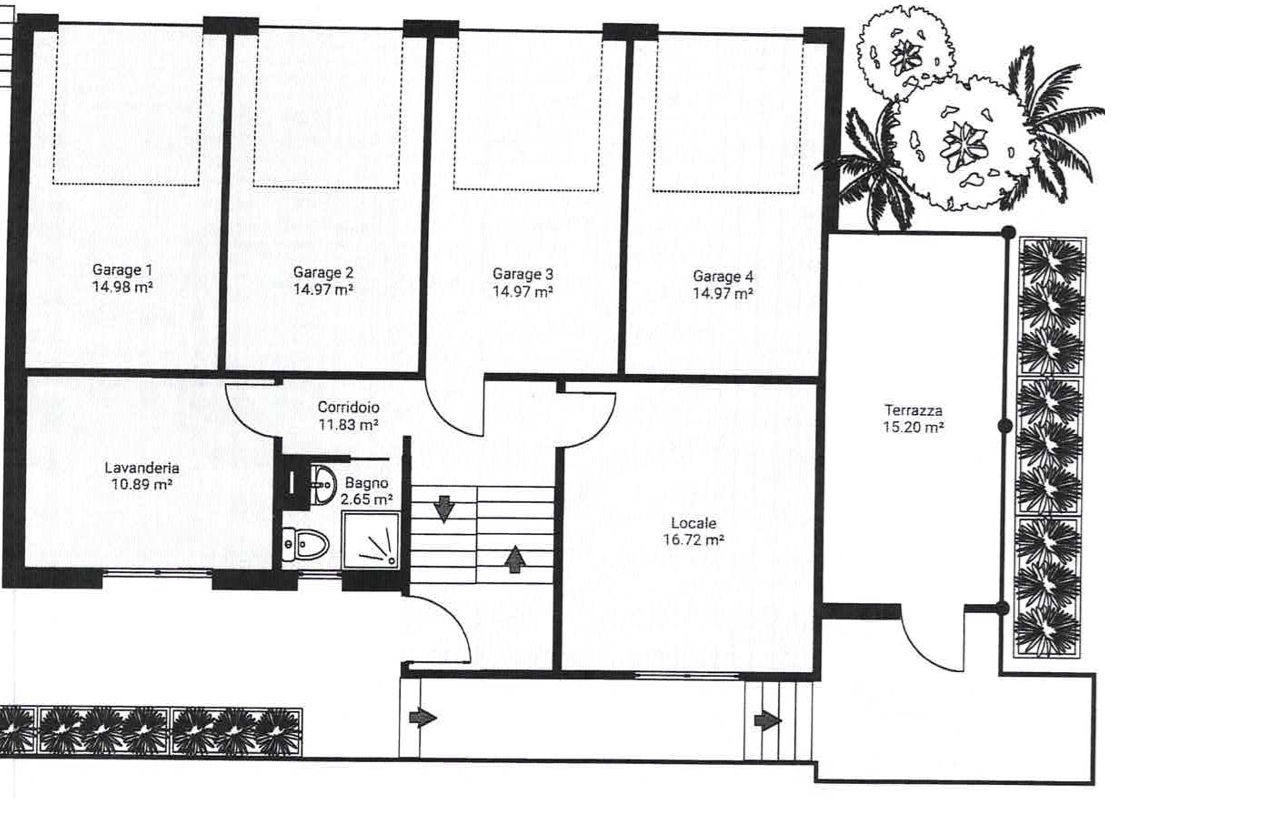
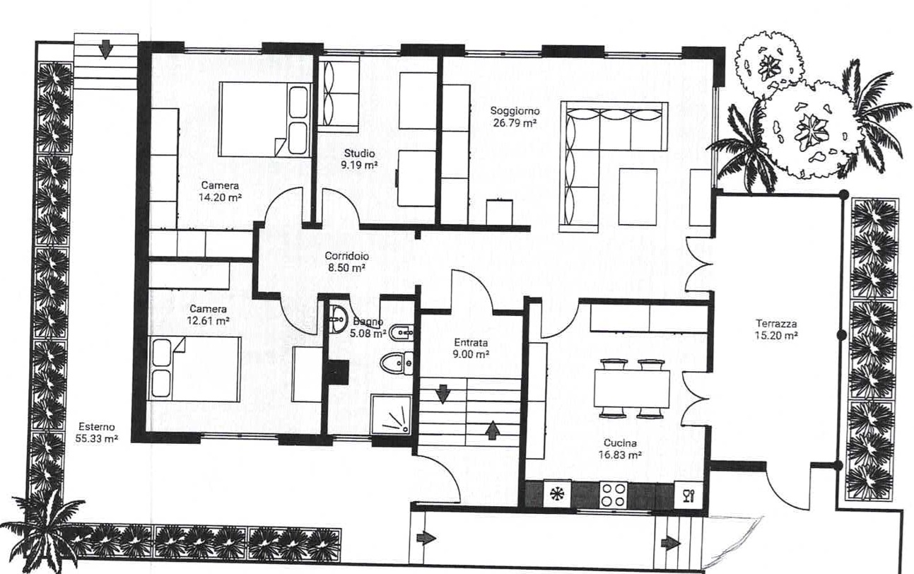
Proponiamo in vendita una casa monofamiliare di 5.5 locali situata in posizione strategica a Bedano. si distingue per il fondo pianeggiante e un potenziale edificatorio residuo eccezionale, rappresentando un investimento ideale sia per privati
CONTATTO
Per maggiori informazioni o per pianificare una visita sul posto, restiamo a vostra completa disposizione.
Questo prezzo è decisamente aggressivo rispetto ai valori attuali di mercato. Questo lo rende un "affare" estremamente appetibile sul mercato, specialmente per chi cerca un immobile da personalizzare.
.webp)
















